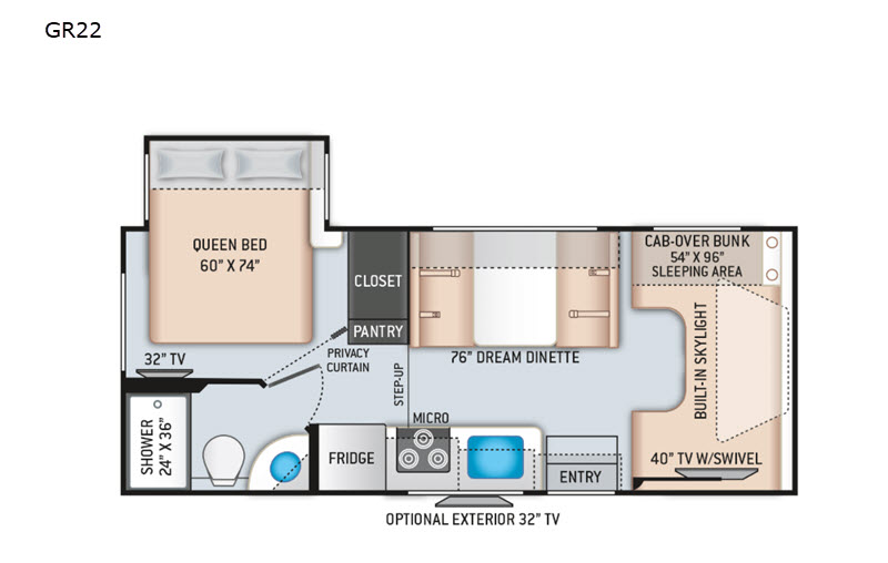
Used 2020 Thor Motor Coach Quantum GR22
Save your favorite RVs as you browse. Begin with this one!
-
Kevin from Folsom, CAThank you Courtney
Like most: Courtney was excellent! We love her... -
Rafael from Shingle Springs, CAVery Satisfied.
Like most: I am very satisfied with everything, Thank You! -
Sergio from Sacramento, CAComfortable Process
Like most: You guys were great, made us feel comfortable through the whole process.
Loading
Used RVs is not responsible for any misprints, typos, or errors found in our website pages. Any price listed excludes sales tax, title, freight and pre-delivery inspection. Savings percentage based on Manufacturers Suggested Retail Prices for select models for in-stock units. Motorized units available at selected locations. Manufacturer pictures, specifications, and features may be used in place of actual units on our lot. Please Contact Us for availability as our inventory changes rapidly. All calculated payments are an estimate only and do not constitute a commitment that financing or a specific interest rate or term is available.
All advertised prices exclude government fees and taxes, any finance charges, any dealer document processing charge, pre-delivery inspection and freight fees, any electronic filing charge, and any emission testing charge. In Texas, prices exclude only tax, title, registration, and any applicable document fee. See dealer for details.




